更具新闻影响力网站
欢迎投稿本网站
主页 > 新闻 > 社会新闻 >

桃园南门市场大火「外摊烧进内摊」 张善政勘灾提3方向补救

发布时间:2025-11-06 12:41   来源:未知    作者:admin

桃园区南门市场遭祝融烧毁,桃市府人员到现场勘灾。(经发局提供)

桃园区南门市场遭祝融烧毁,桃市府人员到现场勘灾。(经发局提供)

历史悠久的桃园市桃园区南门市场5日遭遇4小时祝融几乎全毁,起火点疑似位于外摊的鱼摊,火势迅速烧进内摊,内摊约50摊全被烧毁,桃园市长张善政今(6)日一早前往勘灾,他表示,市府将研议补救措施,包括摊商租金停收、研拟补助方案、重建前另觅处所营业,并将进一步检讨市场外摊消防安检问题。

他表示,南门市场火势延烧得很快,消防人员到场时已延烧相当大面积,南门市场内摊为公有市场范围,其余则是外摊范围,内、外摊加起来有数百摊位受到影响,整个市场约3分之2的面积烧毁,消防人员第一时间进行防堵,市场后面的区域没有被波及,目前还可以正常营业。

张善政表示,目前市府研拟几个方向补救,第一,被烧毁的摊商近期无法营业,摊位租金先行停收,至于补助的部分,今天上午由经发局跨局处开会研议,第二,尚未重建完成之前,希望让摊商先到附近营业,避免影响生计,第三则是消防安检,市场内摊今年10月中旬才完成消防安检,理论上是没有问题,但外摊很多从里面拉电线到外头,这部分会进一步了解。

张善政由经发局长张诚、消防局长龚永信陪同勘灾,并听取南门公有零售市场自治会会长郑秀美、南华里长林献堂及摊商意见,张善政允诺会尽快帮忙摊商重建工作,包括先觅地营业、补助等。

经发局表示,南门市场分为内、外摊,根据现场查访,起火点疑似从文化街这头渔市场起火后往内摊公有市场延烧,但确切起火处及原因仍待消防局火调科调查,目前公有市场烧毁的摊数约50摊,其他遭受烟熏受损的摊位数还要进一步确认,烧毁的部分暂时无法营业,市场后方未受到波及的区域,仍可正常营业。

现场摊商说,火警第一时间市场周围天然气没有关,大约晚间10点左右,欣桃人员赶抵将总开关闭,但市场部分大多使用瓦斯桶。

针对议员凌涛要求市府做好现场、中继、重建等工作,张诚表示,南门市场大火以内摊被烧得最为严重,到底有哪些摊位可先行恢复营业要厘清,内摊公有市场短时间绝对不可能恢复,因此最重要的是中继工作,中继的地点在哪里,南门市场采买习惯已久,因此中继地点希望距离南门市场超过1公里都是不便民,目前有几个地点在考量,最后就是重建工作,南门市场有国有地、市府市场地、私有土地,如何进行完整的规划,未来让南门市场风华再现,内摊总计130摊,有约50摊被烧毁。

消防局长龚永信表示,大火发生时是夜间非营业时段,每个摊贩都是拉下铁卷门,消防人员救灾时须先破坏、再救援,花了很多的时间。

桃园南门市场暗夜祝融烧毁,市长张善政一早前往勘灾,允诺尽快协助摊商复原工作。(记者郑淑婷摄)

桃园南门市场暗夜祝融烧毁,市长张善政一早前往勘灾,允诺尽快协助摊商复原工作。(记者郑淑婷摄)

桃园南门市场暗夜祝融烧毁,市长张善政一早前往勘灾,允诺尽快协助摊商复原工作。(记者郑淑婷摄)

桃园南门市场暗夜祝融烧毁,市长张善政一早前往勘灾,允诺尽快协助摊商复原工作。(记者郑淑婷摄)

桃市府经发局6日上午召开跨局处会议,了解灾损情形、影响状况,并研议后续支援、补偿及评估安置等议题。(经发局提供)

桃市府经发局6日上午召开跨局处会议,了解灾损情形、影响状况,并研议后续支援、补偿及评估安置等议题。(经发局提供)

桃市府经发局6日上午召开跨局处会议,了解灾损情形、影响状况,并研议后续支援、补偿及评估安置等议题。(经发局提供)

桃市府经发局6日上午召开跨局处会议,了解灾损情形、影响状况,并研议后续支援、补偿及评估安置等议题。(经发局提供)

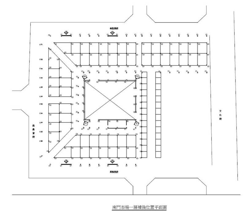
桃园区南门市场历史悠久,内摊公有市场约有130摊,外摊数量更多,火警疑似从文化路外摊渔市场往内摊延烧,图为南门市场摊位配置。(经发局提供)

桃园区南门市场历史悠久,内摊公有市场约有130摊,外摊数量更多,火警疑似从文化路外摊渔市场往内摊延烧,图为南门市场摊位配置。(经发局提供)

桃园区南门市场历史悠久,内摊公有市场约有130摊,外摊数量更多,火警疑似从文化路外摊渔市场往内摊延烧,图为南门市场摊位配置。(经发局提供)

桃园区南门市场历史悠久,内摊公有市场约有130摊,外摊数量更多,火警疑似从文化路外摊渔市场往内摊延烧,图为南门市场摊位配置。(经发局提供)

文章来源:自由时报

上一篇:不要装熟! 小黄当街「骑上」私家车 网笑:这边不开放汽车亲热
下一篇:情侣档贩卖咖啡包被逮 女子刚生幼儿获判缓刑

分享到:
0
最新资讯
阅读排行
广告位